Портал «Загород51» создан с целью обеспечить возможность нашим пользователям быстро и без труда решить самые различные вопросы, касающиеся взаимоотношений на рынке загородной недвижимости.
Номер объекта: 407 Размещение: 03.10.24 Просмотров: 73373
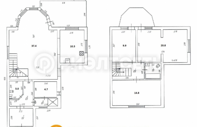
Дом 124.4м2 с участком 70 соток
Кольский район, Кильдинстрой, днт Кильдинское
Характеристики:
  • Этажей: 2
  • Материал стен: Брус
  • Вода: Да
  • Канализация: Да
  • Возможность прописки: Да
Дополнительная информация:
Специально для Вас, уникальный загородный дом площадью 124 м, расположенный на берегу озера Кильдинское. Покупка этого объекта значительно улучшит качество вашей жизни. Согласитесь, так приятно проводить время с семьёй вдали от городской суеты, всего в 30 минутах езды от центра города.



Дом был построен в 2011 году на бетонных сваях размером 40х40. Стены выполнены из каркасного материала, утепленного каменной ватой, а крышу покрывает металлочерепица. На первом этаже пол с электроподогревом, на втором этаже установлены финские конвекторы Nobo, которые обеспечат комфортный микроклимат в любое время года.



Вода поступает из собственной скважины глубиной 30 метров. Электрической мощности в 35 кВт хватит для работы всей бытовой и уличной техники. Канализация осуществляется через станцию биологической очистки сточных вод Юнилос Астра-5, которая не требует регулярной откачки.



В двухэтажном доме имеется 4 комнаты, кухня-столовая, 2 санузла, технические помещения, балкон, а также парная с отдельной душевой. Все это способствует комфортному проживанию большой семьи.



Дом окружен живописным хвойным лесом, что обеспечивает чистый и свежий воздух. В вашем распоряжении находится 70,63 соток земли, что позволяет реализовать любые ваши мечты и планы. Номер объекта в базе (ID) 328802.
Рекламный пакет сформирован агентом ИП Жиленко Виталий Александрович, переговоры с покупателями ведутся от имени и в интересах владельца данной недвижимости
по поручению ООО "Агентство недвижимости "Риэлт" на основании Технического задания и Агентского договора № 67/2021 от 16.07.2021г.
Цена:
7 499 999рублей
Номер для связи:
+7(8152) 77 70 51
Похожие предложения
Консультация профессионалов - бесплатно!
Свяжитесь с нашим специалистом и узнайте о условиях и перечне предоставляемых услуг. Итогом консультации станет ряд индивидуальных предложений на выбор, способных оптимально удовлетворить вашу потребность и требующих минимального участия с вашей стороны.

ООО «Агентство недвижимости «Риэлт» ОГРН 1155190012801

Политика обработки персональных данных

Согласие на обработку персональных данных

Портал загородной недвижимости Мурманской области zagorod51.ru © 2017 - 2026


Создание сайта – Старт Икс